V001756
4 o più locali - Novara(NO)
🏡 Prestigioso appartamento in vendita – Quartiere Sacro Cuore, Novara
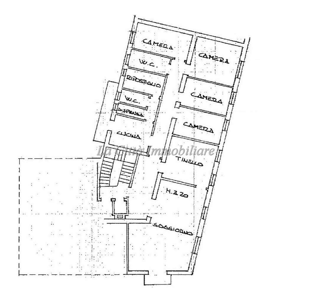
A pochissimi passi da Viale Buonarroti e dall’Ospedale Maggiore della Carità, proponiamo in esclusiva un elegante appartamento di ampia metratura, situato al secondo piano con ascensore di uno stabile signorile.
L’immobile, parzialmente ristrutturato nel 2015, offre 230 mq di comfort e rappresentanza, perfetti per chi cerca spazi generosi e una posizione strategica.
- Caratteristiche principali:
Ingresso di rappresentanza
Ampio salone doppio
Cucina abitabile con sala da pranzo
Camera matrimoniale + tre camere singole
Due bagni finestrati
Lavanderia e ripostiglio
Due balconi
- Finiture:
Pavimenti in parquet, marmo e ceramica nei servizi
Serramenti in legno con doppi vetri e zanzariere
Riscaldamento centralizzato
Produzione dell’acqua calda sanitaria con caldaia autonoma
Comfort assicurato grazie all’impianto di aria condizionata con n. 5 split.
Completa la proprietà un'ampia cantina e un box di 39 mq con basculante elettrificata.
Prezzo richiesto € 395.000,00 comprensivo di arredi
Disponibilità immediata, occasione unica da non perdere!
Lavanderia
Tapparelle Elettriche
| Superficie | 230 mq |
| Piano | 2 |
| Tipo Cucina | Abitabile |
| Balconi | Tre |
| Riscaldamento | Conta Calorie |
| Arredi | Arredato |
| Stato Immobile | Ottimo |
| Totale Piani | Sei |
| Grado | Signorile |
| Acqua Calda | Autonoma |
| Tipo Riscaldam. | Caldaia |
| Serramenti | Ottimo |
| Infissi | Legno Doppio Vetro |
| Lati Liberi | 3 |
| Orientamento | Est Sud Ovest |
| Pavim. Giorno | Parquet |
| Pavim. Notte | Parquet |
| Pavim. Cucina | Ceramica |
| Pavim. Bagno | Ceramica |
| Tipo Soggiorno | Salone |
| Fonte Energetica | Metano |
| Tipo Impianto | Radiatori |
| Classe energetica |
E
I.P.E. 136,08 kwh/mq
|
€ 395000
Spese condominiali annue: € 4600
Immobili in vetrina
Villetta schiera/4 o più locali - Novara(NO)
Villetta a Schiera in Esclusivo Complesso Residenziale "Novara Più"
In una delle zone più richieste di Novara, all’interno del prestigioso comple[...]
Attico/4 o più locali - Galliate(NO)
🏡 ATTICO PANORAMICO DA PERSONALIZZARE – GALLIATE (NO)
📍 Zona semicentrale – Fronte ospedale – Ampio parcheggio
Se stai cercando un attico[...]
Ristorante - Galliate(NO)
GALLIATE - CESSIONE D'AZIENDA - In posizione centrale, proponiamo attività di ristorazione ben avviata.
L'attività si svolge in un bellissimo local[...]
1 locale - Novara(NO)
🏠 Novara Centro – Monolocale a due passi dalla Stazione! Ideale per investimento o pendolari 🚆
In posizione strategica e centralissima, a poc[...]
3 locali - Novara(NO)
🏡 Tra parco e città: vivi la tua casa in salute e relax 🌿
Prossima realizzazione – Residenza I Giardini Poerio
📍 Via Ciro Gastone
Immers[...]
4 o più locali/Attico - Novara(NO)
🏡 Tra parco e città: vivi la tua casa in salute e relax 🌿
Prossima realizzazione – Residenza I Giardini Poerio
📍 Via Ciro Gastone
Immers[...]
2 locali - Novara(NO)
🏡 Tra parco e città: vivi la tua casa in salute e relax 🌿
Prossima realizzazione – Residenza I Giardini Poerio
📍 Via Ciro Gastone
Immers[...]
2 locali - Galliate(NO)
🏡 Bilocale ristrutturato nel cuore del Centro Storico di Galliate
In una caratteristica corte storica completamente ristrutturata nel 2008, proponi[...]
3 locali/4 o più locali - Galliate(NO)
🏡 Prenota la tua casa dei sogni!
Se la prenoti entro il 31/12/2025, avrai uno sconto esclusivo del 5%.
✨ Non perdere questa occasione unica!
NUO[...]
4 o più locali - Novara(NO)
🏛 CENTRO STORICO – Eleganza e Riservatezza nel Cuore della Città 🏛
In una delle zone più suggestive e ricercate del centro storico, all'int[...]
4 o più locali - Novara(NO)
🏡 Prestigioso appartamento in vendita – Quartiere Sacro Cuore, Novara
A pochissimi passi da Viale Buonarroti e dall’Ospedale Maggiore della Ca[...]
